Loading...
概述
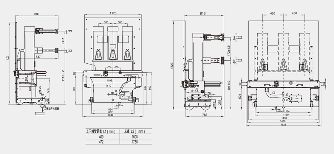
ZN85系列户内高压真空断路器(以下简称断路器),适用于三相交流50Hz,额定电压40.5kV电力系统中,可供工矿企业、发电厂及变电站作为分合负荷电流、过载电流、故障电流之用。断路器与操动机构采用上下布置结构,有效地降低了断路器的深度。
三相灭弧室和相联带电体由三只独立的环氧树脂绝缘筒相隔离,构成复合绝缘结构,断路器满足正常运行条件下的空气距和爬距要求,并有效地减小了断路器的体积。主导电回路真空灭弧室和动静导电联接安装在绝缘筒内,使相间距仅为300mm。主回路电气连接全部采用固定式连接,具有很高的可靠性。绝缘筒安装在断路器框架上方。
为这种新型断路器专门设计的弹簧操动机构,安装在断路器框架内,其结构特点更适合断路器的上下布置形式,并成为断路器整体结构中不可分割的一部分。机构设计简单,输出曲线及其性能更适用40.5kV真空断路器的特点和要求。
总体布局合理、美观、简洁。体积小巧、操作灵活、具有电气性能可靠、使用寿命长、检修方便、机构免维护的特点。
该断路器适用于频繁操作及多种场合和运行条件比较苛刻的场所。
型号含义

执行标准
GB1984-2003《高压交流断路器》
GB/T11022-1999《高压开关设备和控制设备标准的共用技术要求》
IEC62271-100《高压交流断路器》
正常使用环境
周围空气温度:不超过40℃;日平均温度不超过35℃;最低周围空气温度为-15℃。
空气相对湿度:日平均值不大于95%,月平均值不大于90%;水蒸气压日平均值不大于2.2kPa;
月平均值不大于1.8kPa;
海拔高度:不超过1000m;
周围没有明显地受到尘埃、烟、腐蚀性和/或可燃性气体、蒸汽或盐雾的污染;
来自开关设备和控制设备外部的振动或地动是可以忽略的;
在二次系统中感应的电磁干扰的幅值不超过1.6kV。
特殊使用条件安装地点在海拔超过1000m、周围空气温度超过正常使用条件规定的限值或高湿易产生凝露的地方,请与我们协商定制。
产品技术特点
断路器总体性能优越
◇断路器整体结构简单合理,灭弧室部分与联锁、操动部分采用上下布置。
◇专用的弹簧操动机构,无需调整,动作稳定可靠。
◇安装形式自由灵活,包括可抽出手车式柜内安装及侧面机构布置固定式安装。
高可靠性能的绝缘筒
◇绝缘筒采用机电性能可靠的环氧树脂经由成熟的真空浇注工艺而成。
◇真空灭弧室布置于封闭的绝缘筒内,显著提高绝缘性能,免受外界恶劣环境影响,有效防止灰尘和异物进入主回路部分。
◇显著缩小断路器整体尺寸。
真空灭弧室
◇首选WL-35855X真空灭弧室,来自于美国Cutler-Hammar公司的品质保障。
◇可选线圈式纵向强磁场结构真空灭弧室,采用陶瓷外壳,铜铬触头材料,外形尺寸小,绝缘水
◇平高、灭弧能力强、电寿命长,优良的开断和关合短路电流的性能。
可选固封工艺
◇断路器的主导电回路选用固封工艺,将真空灭弧室浇注于绝缘筒中。
◇绝缘强度极大提高。
主要技术参数
|
名称 |
单位 |
数据 |
|
额定电压 |
kV |
40.5 |
|
1min工频耐受电压(有效值) |
kV |
95 |
|
雷电冲击耐受电压(峰值) |
kV |
185 |
|
额定频率 |
Hz |
50 |
|
额定电流 |
A |
1250,1600,2000 |
|
额定短时耐受电流 |
kA |
25,31.5 |
|
额定峰值耐受电流 |
kA |
63,80 |
|
额定短路持续时间 |
S |
4 |
|
额定短路开断电流 |
kA |
25,31.5 |
|
额定短路关合电流 |
kA |
63,80 |
|
额定操作顺序 |
O-0.3s-CO-180s-CO |
|
|
开断时间 |
ms |
<80 |
|
额定短路开断电流开断次数 |
次 |
20 |
|
单个电容器组开断电流 |
A |
630 |
|
背靠背电容器组开断电流 |
A |
400 |
|
额定操作电压 |
V |
AC110,220;DC110,220 |
|
机械寿命 |
次 |
10000 |