Loading...
型号含义

使用环境
a.周围空气温度:上限+50℃,下限-30℃;
b.海拔高度:≤3000m(若需增高海拔,则额定绝缘水平相应提高);
c.振幅:地震烈度不超过8度;
d.空气相对湿度日平均值不大于95%,月平均值不大于90%;
e.无火灾、爆炸危险、严重污染、化学腐蚀及剧烈震动的场所。
性能优点
该型产品为模块式操作机构,主绝缘采用固体绝缘,真空灭弧室整体浇注在环氧树脂绝缘间内,采用该结构大大提高了产品的绝缘性能,能满足潮湿和高海拔等环境条件要求。
主要技术参数
|
序号 |
名称 |
单位 |
数据 |
|||||
|
1 |
额定电压 |
kV |
12 |
|||||
|
2 |
额定频率 |
Hz |
50 |
|||||
|
3 |
额定绝缘水平 |
1min工频耐压 |
kA |
对地/相间42/48 |
||||
|
雷电冲击耐压(峰值) |
对地/相间75/85 |
|||||||
|
4 |
额定短路开断电流 |
20 |
25 |
31.5 |
40/50 |
|||
|
5 |
额定电流 |
A |
630 |
630 |
1250 1600 |
1250 1600 2000 |
||
|
1250 |
1250 |
2000 2500 |
3150 2500 4000 5000 |
|||||
|
6 |
额定短时耐受电流(有效值) |
kA |
20 |
25 |
31.5 |
40/50 |
||
|
7 |
额定峰值耐受电流(峰值) |
50 |
63 |
80 |
100/125 |
|||
|
8 |
额定短路关合电流(峰值) |
50 |
63 |
80 |
100/125 |
|||
|
9 |
额定短路电流持续时间 |
S |
4 |
|||||
|
10 |
机械寿命 |
次 |
20000 |
|||||
|
11 |
二次回路工频耐受电压(1min) |
V |
2000 |
|||||
|
12 |
额定操作顺序 |
分-t-合分-t1-合分 |
||||||
|
注:20kA、25kA、31.5kA t=0.3s t1=180s;40/50kA t=180st1=180s |
||||||||
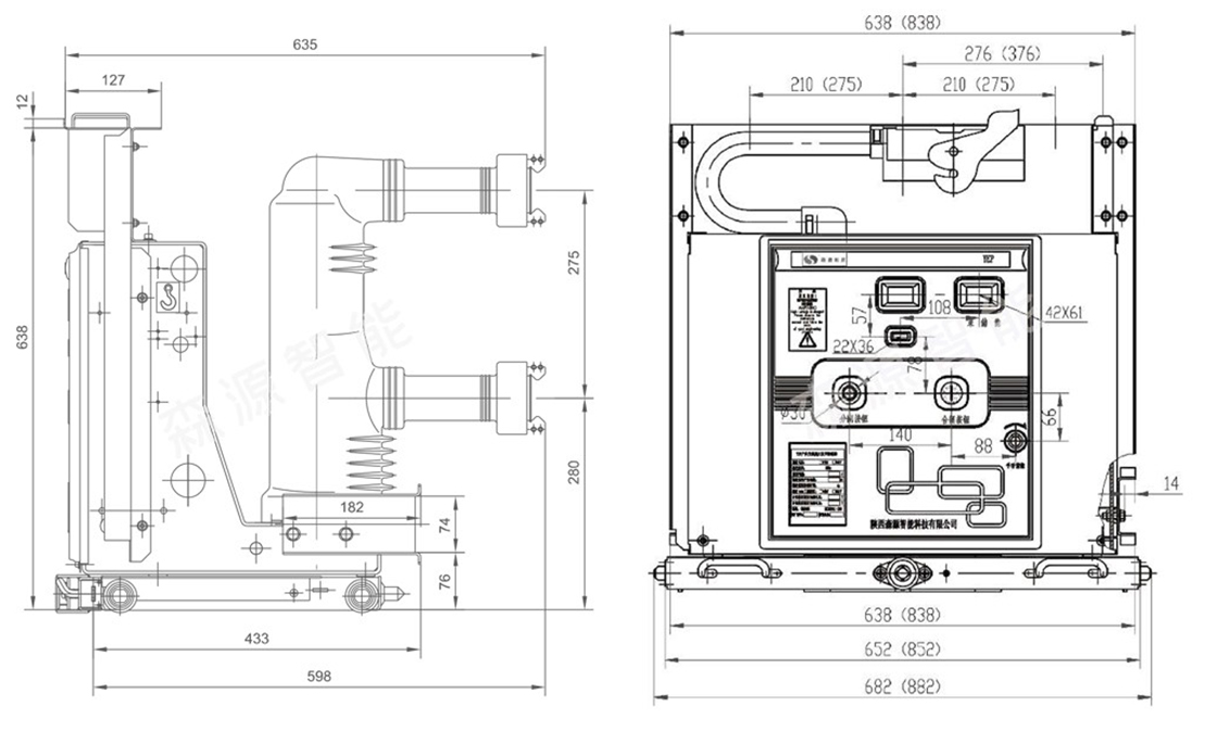
外形及安装尺寸图